Réf : VDU1190005169

Bonnières-sur-Seine (78270) Maison T5 Centre ville Bonnières

Situé en Centre ville de Bonnières à 300 m de la gare, cet appartement type maison de ville de 128m² en duplex se décompose de la manière suivante: Au RDC : séjour ouvert sur cuisine aménagée, buanderie et un placard sous l'escalier. A l'étage: Un palier, un couloir, 4 chambres, et une salle d'eau. Au deuxième grenier: un grenier à aménager Travaux de rénovation à prévoir Provision pour charge très faible: assurance de l'immeuble uniquement. Vous souhaitez en savoir plus, contactez votre conseiller Steeven Bonnet mandataire immobilier WINKEY enregistré au RCS de Versailles sous le numéro 881 286 751 .

Annonce proposée par un agent commercial

Les caractéristiques Du bien

Code postal 78270
Surface habitable (m²) 128 m²
Nombre de chambre(s) 4
Nombre de pièces 5
Ascenseur 2
Nb de salle d'eau 1
Cuisine Américaine

Les infos Financières

Les infos Energetiques

DPE GES
DPE ANCIENNE VERSION

Nos outils

Imprimer

Localisation Du bien

  • Commerces et santé
  • Loisirs
  • Ecoles
  • Transports
  • Pratique
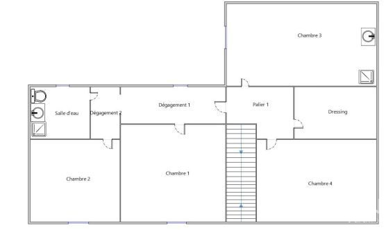
Rez de chaussée
placard 1,75 m²

buanderie 2,88 m²

cuisine 19,5 m²

séjour 18,87 m²

Etage 1
chambre 3 14,96 m²

dégagement 2 5,56 m²

pièce 1 6,28 m²

chambre 2 17,56 m²

chambre 1 15,82 m²

dégagement 1 3,45 m²

sde +wc 4,81 m²

chambre 4 9,59 m²

dégagement 3 2,24 m²

* Champ obligatoire

contacter l'agence
Les informations recueillies sur ce formulaire sont enregistrées dans un fichier informatisé par La Boite Immo agissant comme Sous-traitant du traitement pour la gestion de la clientèle/prospects de l'Agence / du Réseau qui reste Responsable du Traitement de vos Données personnelles. La base légale du traitement repose sur l'intérêt légitime de l'Agence / du Réseau. Elles sont conservées jusqu'à demande de suppression et sont destinées à l'Agence / au Réseau. Conformément à la loi « informatique et libertés », vous disposez des droits d’accès, de rectification, d’effacement, d’opposition, de limitation et de portabilité de vos données. Vous pouvez retirer votre consentement à tout moment en contactant directement l’Agence / Le Réseau. Consultez le site https://cnil.fr/fr pour plus d’informations sur vos droits. Si vous estimez, après avoir contacté l'Agence / le Réseau, que vos droits « Informatique et Libertés » ne sont pas respectés, vous pouvez adresser une réclamation à la CNIL. Nous vous informons de l’existence de la liste d'opposition au démarchage téléphonique « Bloctel », sur laquelle vous pouvez vous inscrire ici : https://www.bloctel.gouv.fr Dans le cadre de la protection des Données personnelles, nous vous invitons à ne pas inscrire de Données sensibles dans le champ de saisie libre.
Ce site est protégé par reCAPTCHA, les Politiques de Confidentialité et les Conditions d'Utilisation de Google s'appliquent.
Ces biens peuvent aussi vous intéresser
Goussonville (78930)

Terrain à bâtir de 585 m² viabilisé

Nous suivre sur