Réf : VM2066

Marsais (17700) À Vendre – Charmante Maison Familiale à Marsais

Découvrez cette belle maison pleine de charme, offrant environ 210 m² de surface au sol (148 m² habitables), idéalement nichée dans un quartier paisible de Marsais. Parfaite pour une grande famille, cette maison spacieuse dispose de cinq chambres, dont une suite parentale de 18 m² au rez-de-chaussée.Dès votre entrée, vous serez séduit par le salon/salle à manger de 30 m², agrémenté d'une cheminée à insert, créant une ambiance chaleureuse et conviviale pour vos soirées en famille. La cuisine équipée de 11 m² est parfaite pour préparer de délicieux repas, tandis que la véranda exposée plein sud vous invite à profiter de moments de détente en toute saison. Cette maison offre tout le confort nécessaire avec deux salles d'eau et deux toilettes indépendantes, assurant bien-être et praticité pour tous les membres de la famille.À l’extérieur, un charmant jardin de 150 m² vous attend, parfait pour des moments de détente et de convivialité en plein air. De plus, un garage spacieux de 30 m² vous offre un espace de rangement supplémentaire.Entièrement rénovée en 2016, cette maison allie le charme de l’ancien et le confort de la modernité : chauffage par pompe à chaleur (2011), portes et fenêtres neuves (2016), garage isolé (2016), cuisine refaite (2017), et portail électrique en aluminium (2018). La peinture de façade a été réalisée en 2020, offrant à cette maison une allure soignée et moderne.

Localisation Idéale

Située à seulement 10 minutes de la gare de Surgères (à 2h15 de Paris en TGV direct), à 40 minutes de La Rochelle, et à 35 minutes des plages et de l'île de Ré, cette maison combine tranquillité, modernité et proximité des commodités.

Performances Énergétiques et Coûts Maîtrisés :
DPE : D (246) | GES : B (7)
Coûts annuels estimés entre 1 940 € et 2 680 €, basés sur les prix moyens de l'énergie indexés au 1er janvier 2021. Prix : 233 000 € FAI, dont 3,56 % de frais de négociation à la charge des acquéreurs - soit 225 000 € net vendeur.Ne manquez pas cette opportunité unique ! Contactez votre conseiller WINKEY : Monsieur François LAPIE 07.60.14.31.77 f.lapie@winkey.fr Agent commercial EI immatriculé sous le numéro 979 667 847 RSAC de LAVAL RCP MMA | Carte T WINKEY CPI 9501 2018 000 035 005 Informations légales :
Les informations sur les risques auxquels ce bien est exposé sont disponibles sur le site Géorisques :www.georisques.gouv.fr

Annonce proposée par un agent commercial

Les caractéristiques Du bien

Code postal 17700
Surface habitable (m²) 148 m²
surface terrain 200 m²
Nombre de chambre(s) 5
Nombre de pièces 6
Nombre de niveaux 2
Nb de salle d'eau 2
Cuisine Séparée
Type de cuisine Equipée
Mode de chauffage Pompe à chaleur
Type de chauffage Autre
Format de chauffage AUTRE
Terrasse OUI
Cave OUI
Nombre de parking 1
Jardin OUI

Les infos Financières

Prix de vente honoraires TTC inclus 233 000 €
Prix de vente honoraires TTC exclus 225 000 €
Honoraires TTC à la charge acquéreur 3,56 %
Taxe foncière annuelle 1 370 €

Les infos Energetiques

DPE GES

Montant estimé des dépenses annuelles d'énergie de ce logement pour un usage standard est compris entre 1 940 € et 2 680 € . 2021 étant l'année de référence des prix de l'énergie utilisés pour établir cette estimation.

Nos outils

Imprimer

Localisation Du bien

  • Commerces et santé
  • Loisirs
  • Ecoles
  • Transports
  • Pratique
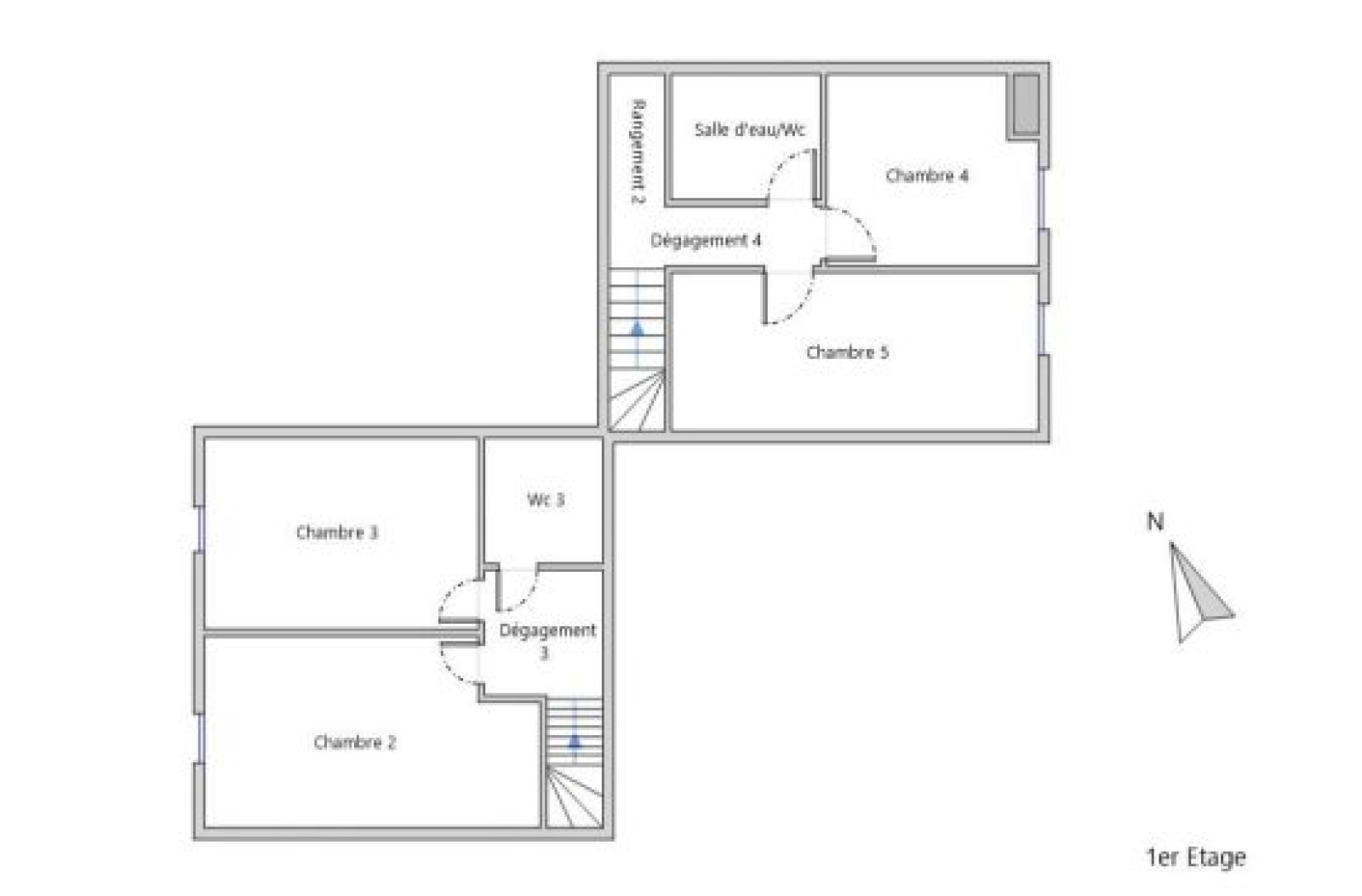
Etage 1
chambre 5 (13.86 au sol) 7.86 m²

chambre 4 (11.36 au sol) 4.91 m²

salled'eau / wc 1.71 m²

dégagement 4 1.09 m²

wc 1.15 m²

chambre 3 11.46 m²

chambre 2 12.59 m²

dégagement 3 3.25 m²

Rez de chaussée
buanderie 6 m²

wc 1.94 m²

placard 0.56 m²

salle d'eau 3.65 m²

dégagement 2 3.5 m²

chambre 1 17.78 m²

wc 0.42 m²

dégagement 1 4.85 m²

veranda 15.32 m²

salon séjour 29.64 m²

rangement (occupé par chauffe eau) 3.25 m²

cellier 7.73 m²

cuisine 11.18 m²

* Champ obligatoire

contacter l'agence
Les informations recueillies sur ce formulaire sont enregistrées dans un fichier informatisé par La Boite Immo agissant comme Sous-traitant du traitement pour la gestion de la clientèle/prospects de l'Agence / du Réseau qui reste Responsable du Traitement de vos Données personnelles. La base légale du traitement repose sur l'intérêt légitime de l'Agence / du Réseau. Elles sont conservées jusqu'à demande de suppression et sont destinées à l'Agence / au Réseau. Conformément à la loi « informatique et libertés », vous disposez des droits d’accès, de rectification, d’effacement, d’opposition, de limitation et de portabilité de vos données. Vous pouvez retirer votre consentement à tout moment en contactant directement l’Agence / Le Réseau. Consultez le site https://cnil.fr/fr pour plus d’informations sur vos droits. Si vous estimez, après avoir contacté l'Agence / le Réseau, que vos droits « Informatique et Libertés » ne sont pas respectés, vous pouvez adresser une réclamation à la CNIL. Nous vous informons de l’existence de la liste d'opposition au démarchage téléphonique « Bloctel », sur laquelle vous pouvez vous inscrire ici : https://www.bloctel.gouv.fr Dans le cadre de la protection des Données personnelles, nous vous invitons à ne pas inscrire de Données sensibles dans le champ de saisie libre.
Ce site est protégé par reCAPTCHA, les Politiques de Confidentialité et les Conditions d'Utilisation de Google s'appliquent.
Ces biens peuvent aussi vous intéresser
Nous suivre sur