Exclusif
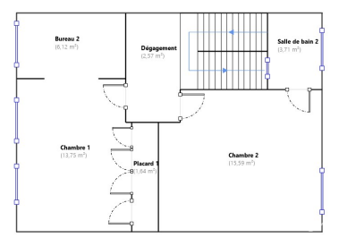
Janzé (35150) Maison de plain pied
198 000 €
Réf : VMA1010005917
