Sous-compromis
Exclusif

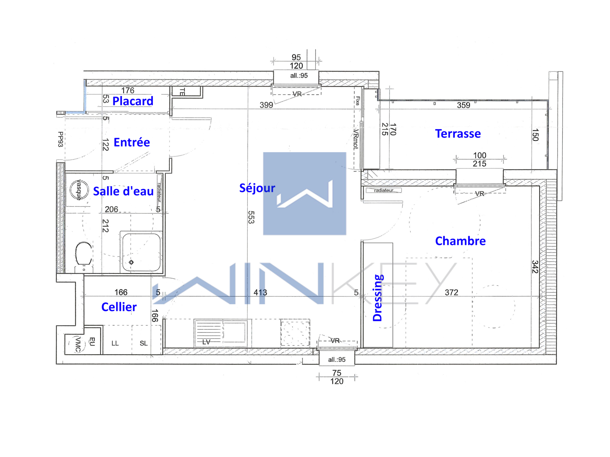
Rennes (35700) EXCLUSIVITÉ RENNES MAUREPAS BELLANGERAIS T2 AVEC TERRASSE ET PARKING

Réf : V2040005294 200 000 €

NOUVELLE OPPORTUNITÉ – EN EXCLUSIVITÉ !

A RENNES, Charmant T2 de 46 m² situé dans un environnement calme, résidentiel et verdoyant, entre les quartiers Nord Saint-Martin et Maurepas Bellangerais. Au 1er étage sur 4 d’une résidence récente de 2013, bien entretenue et sécurisée, ce bien offre un cadre de vie agréable à proximité immédiate des commerces, écoles, transports en commun (bus C3, 12, 14, 32 et à 2 arrêts du métro Anatole France) ainsi que des accès rapides au centre-ville et à la rocade.

L’appartement se compose d’une entrée, d’un séjour lumineux exposé sud-ouest avec un bel espace cuisine et accès à une terrasse, d’une chambre disposant également d’un accès à la terrasse, d’une salle de bains avec WC et d’un cellier. L’agencement est fonctionnel, l’ensemble est en très bon état et bénéficie de prestations confortables comme les volets électriques, de larges ouvertures et une bonne performance énergétique avec un DPE C.

Une place de parking sécurisée en sous-sol ainsi qu’un grenier d’environ 3,5 m² complètent le bien. Fonctionnel, lumineux et bien situé, cet appartement convient aussi bien pour un premier achat que pour un investissement locatif de qualité.

À découvrir sans tarder.

Annonce proposée par un agent commercial

TRAD_SIROCCO_Caracteristique Valeurs
Code postal 35700
Surface habitable (m²) 46 m²
Surface loi Carrez (m²) 46 m²
Nombre de chambre(s) 1
Nombre de pièces 2
Etage 1
Ascenseur OUI
Vue Chemin pieton arboré
TRAD_SIROCCO_Caracteristique Valeurs
Nb de salle d'eau 1
Type de cuisine SEMI-EQUIPEE
Mode de chauffage Autre
Type de chauffage Autre
Format de chauffage Collectif
Interphone OUI
Terrasse OUI
Cave OUI
Surface cave (m²) 4
Exposition Sud-Ouest
Année de construction 2013
TRAD_SIROCCO_Caracteristique Valeurs
Copropriété OUI
nombre de lots 75
Quote Part annuelle des charges 1 200 €
TRAD_SIROCCO_Caracteristique Valeurs
Prix de vente honoraires TTC inclus 200 000 €
Prix de vente honoraires TTC exclus 195 000 €
Honoraires TTC à la charge acquéreur 2,56 %
Charges 100 €
Taxe foncière annuelle 975 €
DPE GES
DPE en cours
  • Commerces et santé
  • Loisirs
  • Ecoles
  • Transports
  • Pratique

Nos outils

Imprimer
Intéressé(e) par Ce bien ?

* Champ obligatoire

contacter l'agence

Les informations recueillies sur ce formulaire sont enregistrées dans un fichier informatisé par La Boite Immo agissant comme Sous-traitant du traitement pour la gestion de la clientèle/prospects de l'Agence / du Réseau qui reste Responsable du Traitement de vos Données personnelles. La base légale du traitement repose sur l'intérêt légitime de l'Agence / du Réseau. Elles sont conservées jusqu'à demande de suppression et sont destinées à l'Agence / au Réseau. Conformément à la loi « informatique et libertés », vous disposez des droits d’accès, de rectification, d’effacement, d’opposition, de limitation et de portabilité de vos données. Vous pouvez retirer votre consentement à tout moment en contactant directement l’Agence / Le Réseau. Consultez le site https://cnil.fr/fr pour plus d’informations sur vos droits. Si vous estimez, après avoir contacté l'Agence / le Réseau, que vos droits « Informatique et Libertés » ne sont pas respectés, vous pouvez adresser une réclamation à la CNIL. Nous vous informons de l’existence de la liste d'opposition au démarchage téléphonique « Bloctel », sur laquelle vous pouvez vous inscrire ici : https://www.bloctel.gouv.fr Dans le cadre de la protection des Données personnelles, nous vous invitons à ne pas inscrire de Données sensibles dans le champ de saisie libre.
Ce site est protégé par reCAPTCHA, les Politiques de Confidentialité et les Conditions d'Utilisation de Google s'appliquent.

Ces biens peuvent aussi vous intéresser
Sous-compromis
Exclusif
Saint-Jacques-de-la-Lande (35136)

A VENDRE EN EXCLUSIVITE - SAINT JACQUES DE LA LANDE - BEL...

Sous-compromis
Coup de coeur
Domagné (35113)

Maison centre Domagné

Nous suivre sur