Houilles (78800) Houilles – Belle maison familiale rénovée, volumes généreux, prestations haut de gamme

Réf : VMA980005913 895 000 €

EXCLUSIVITE

Située dans un quartier résidentiel recherché de Houilles, cette belle maison familiale entièrement rénovée développe environ 173,6 m² habitables (235 m² au sol) et offre des volumes généreux ainsi qu’un cadre de vie très agréable à proximité de Paris.

Dès l’entrée, la maison séduit par sa luminosité et la qualité de ses prestations. Le rez-de-chaussée s’organise autour d’une entrée avec rangements et d’un WC indépendant, puis s’ouvre sur un bel espace de vie convivial comprenant un séjour lumineux et une grande cuisine moderne entièrement équipée. Cet espace de vie, chaleureux et fonctionnel, bénéficie d’un accès direct à la terrasse et au jardin, idéal pour profiter des beaux jours en famille ou entre amis. Un garage attenant complète ce niveau.

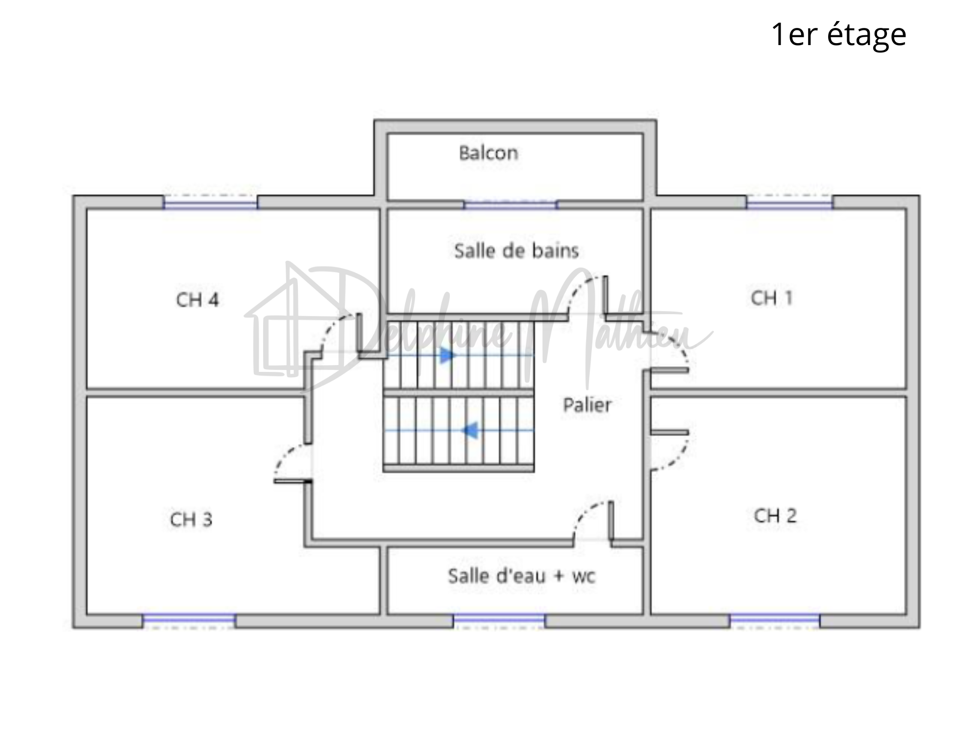
Au premier étage, l’espace nuit propose quatre chambres confortables, une salle de bains, ainsi qu’une salle d’eau avec WC, offrant un agencement idéal pour une vie de famille. Ce niveau dispose également d’un balcon, apportant encore plus de luminosité aux pièces.

Le deuxième étage accueille un espace plus intimiste pouvant constituer une véritable suite parentale, avec une spacieuse chambre, un grand dressing et une salle d’eau avec WC. Un balcon vient compléter cet étage et offre une agréable ouverture sur l’extérieur.

Le sous-sol propose des espaces supplémentaires particulièrement appréciables, avec notamment une salle de cinéma ou de loisirs, une buanderie ainsi que plusieurs espaces de rangement.

À l’extérieur, la maison dispose d’un jardin agréable et d’une terrasse, parfaits pour profiter des moments de détente en plein air.

La maison bénéficie par ailleurs d’équipements récents améliorant le confort et la performance énergétique, notamment une pompe à chaleur air/air avec climatisation réversible, un poêle à bois, ainsi qu’un chauffe-eau thermodynamique, permettant d’obtenir un DPE classé C.

La maison bénéficie également d’un emplacement privilégié à proximité du centre-ville et de la gare Houilles – Carrières-sur-Seine (RER A et lignes J et L), permettant de rejoindre La Défense en une dizaine de minutes et Paris en une quinzaine de minutes. Cet environnement résidentiel recherché offre un cadre de vie pratique et agréable au quotidien.

Cette propriété combine charme de l’ancien, rénovation de qualité et volumes généreux, et constitue une opportunité idéale pour une famille recherchant un bien spacieux et confortable à Houilles.

Annonce proposée par un agent commercial

TRAD_SIROCCO_Caracteristique Valeurs
Code postal 78800
Surface habitable (m²) 180 m²
surface terrain 387 m²
Surface loi Carrez (m²) 174 m²
Nombre de chambre(s) 5
Nombre de pièces 9
Nombre de niveaux 2
TRAD_SIROCCO_Caracteristique Valeurs
Nb de salle de bains 1
Nb de salle d'eau 2
Cuisine Américaine
Type de cuisine Equipée
Mode de chauffage Bois, Pompe à chaleur
Type de chauffage Poêle, Air pulsé
Format de chauffage Individuel, Individuel
Terrasse OUI
Nombre de garage 1
Année de construction 2016
Jardin OUI
Surface jardin 250
TRAD_SIROCCO_Caracteristique Valeurs
Copropriété NON
TRAD_SIROCCO_Caracteristique Valeurs
Prix de vente honoraires TTC inclus 895 000 €
DPE GES

Montant estimé des dépenses annuelles d'énergie pour un usage standard est compris entre 1 360 € et 1 910 € . Prix moyens des énergies indexés sur les années 2021, 2022 et 2023 (abonnements compris).

  • Commerces et santé
  • Loisirs
  • Ecoles
  • Transports
  • Pratique

Nos outils

Imprimer
Intéressé(e) par Ce bien ?

* Champ obligatoire

contacter l'agence

Les informations recueillies sur ce formulaire sont enregistrées dans un fichier informatisé par La Boite Immo agissant comme Sous-traitant du traitement pour la gestion de la clientèle/prospects de l'Agence / du Réseau qui reste Responsable du Traitement de vos Données personnelles. La base légale du traitement repose sur l'intérêt légitime de l'Agence / du Réseau. Elles sont conservées jusqu'à demande de suppression et sont destinées à l'Agence / au Réseau. Conformément à la loi « informatique et libertés », vous disposez des droits d’accès, de rectification, d’effacement, d’opposition, de limitation et de portabilité de vos données. Vous pouvez retirer votre consentement à tout moment en contactant directement l’Agence / Le Réseau. Consultez le site https://cnil.fr/fr pour plus d’informations sur vos droits. Si vous estimez, après avoir contacté l'Agence / le Réseau, que vos droits « Informatique et Libertés » ne sont pas respectés, vous pouvez adresser une réclamation à la CNIL. Nous vous informons de l’existence de la liste d'opposition au démarchage téléphonique « Bloctel », sur laquelle vous pouvez vous inscrire ici : https://www.bloctel.gouv.fr Dans le cadre de la protection des Données personnelles, nous vous invitons à ne pas inscrire de Données sensibles dans le champ de saisie libre.
Ce site est protégé par reCAPTCHA, les Politiques de Confidentialité et les Conditions d'Utilisation de Google s'appliquent.

Ces biens peuvent aussi vous intéresser
Coup de coeur
Gujan-Mestras (33470)

Bien rare à Gujan-Mestras

Nouveauté
Saint-Herblain (44800)

NOUVEAU A VENDRE SEULEMENT CHEZ WINKEY - Maison de 172 m² - NANTES

Nous suivre sur